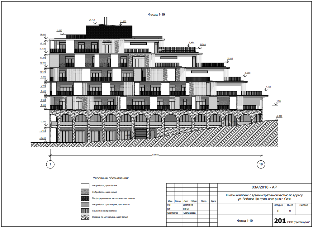
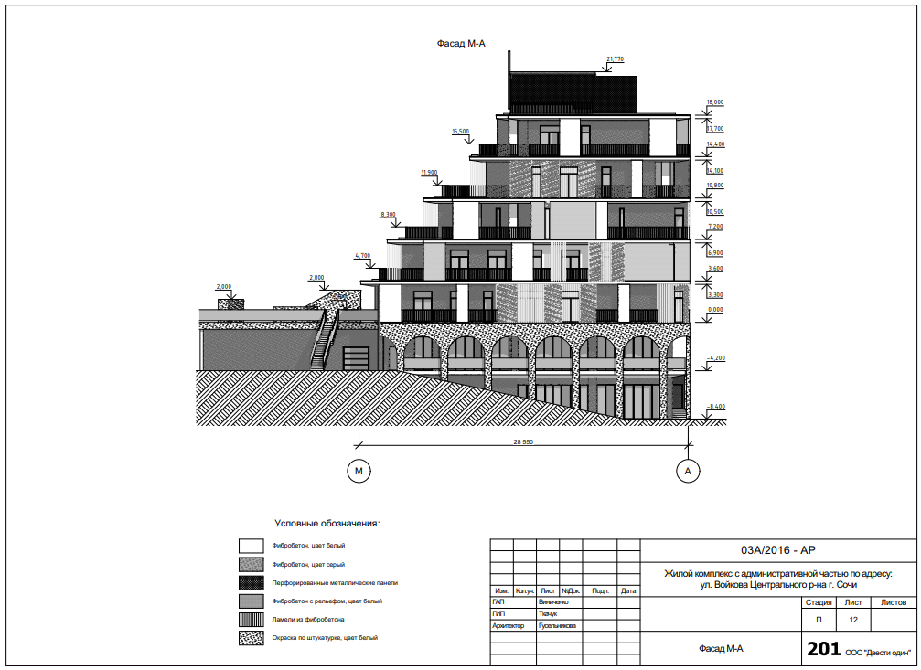
We were commissioned to design a residential building in Sochi, on the rocky coast of the Black Sea. The steep terrain, the southern climate, and the local architectural traditions all shaped the idea of a complex, layered form. The building is split into two contrasting parts: an arcade with cafés and shops at the base, and the residential levels above, opening out onto terraces.
Its stepped silhouette with pergolas responds to the warmth of the southern climate while also lifting the apartments away from the surrounding high-rise towers. Over time, the architecture is meant to evolve, as residents cultivate their terrace gardens and green facades, making the building a living part of the landscape.


























