
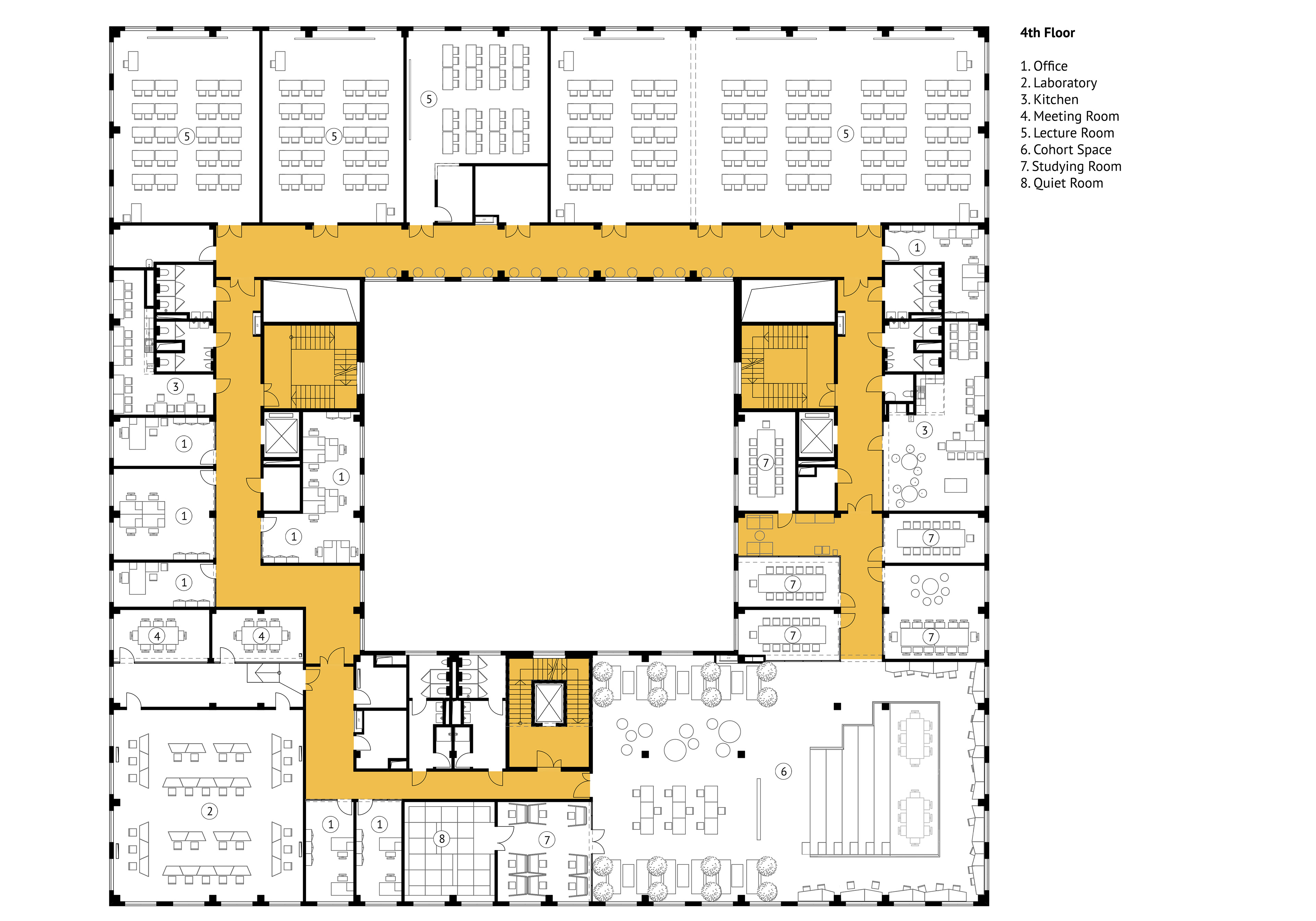
Sredaa designed a temporary home for the Skolkovo Institute of Science and Technology while the permanent Herzog & de Meuron campus was still in progress.
Skoltech needed a place to bring together laboratories, offices, and auditoriums under one roof, and the chosen shell-and-core building from the Technopark Office Centre had to be completely reworked inside to meet their needs—most importantly, within a very tight budget.
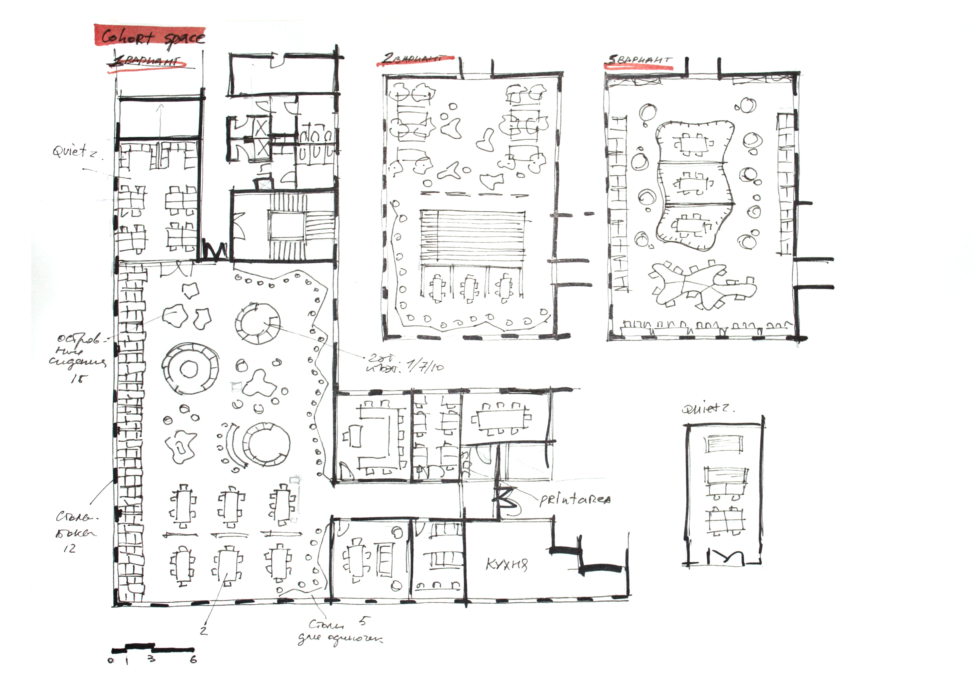
The design set out a few simple rules that could be applied across different spaces, making the project quick to execute and flexible enough to adapt as Skoltech’s layout kept evolving from day one.































