
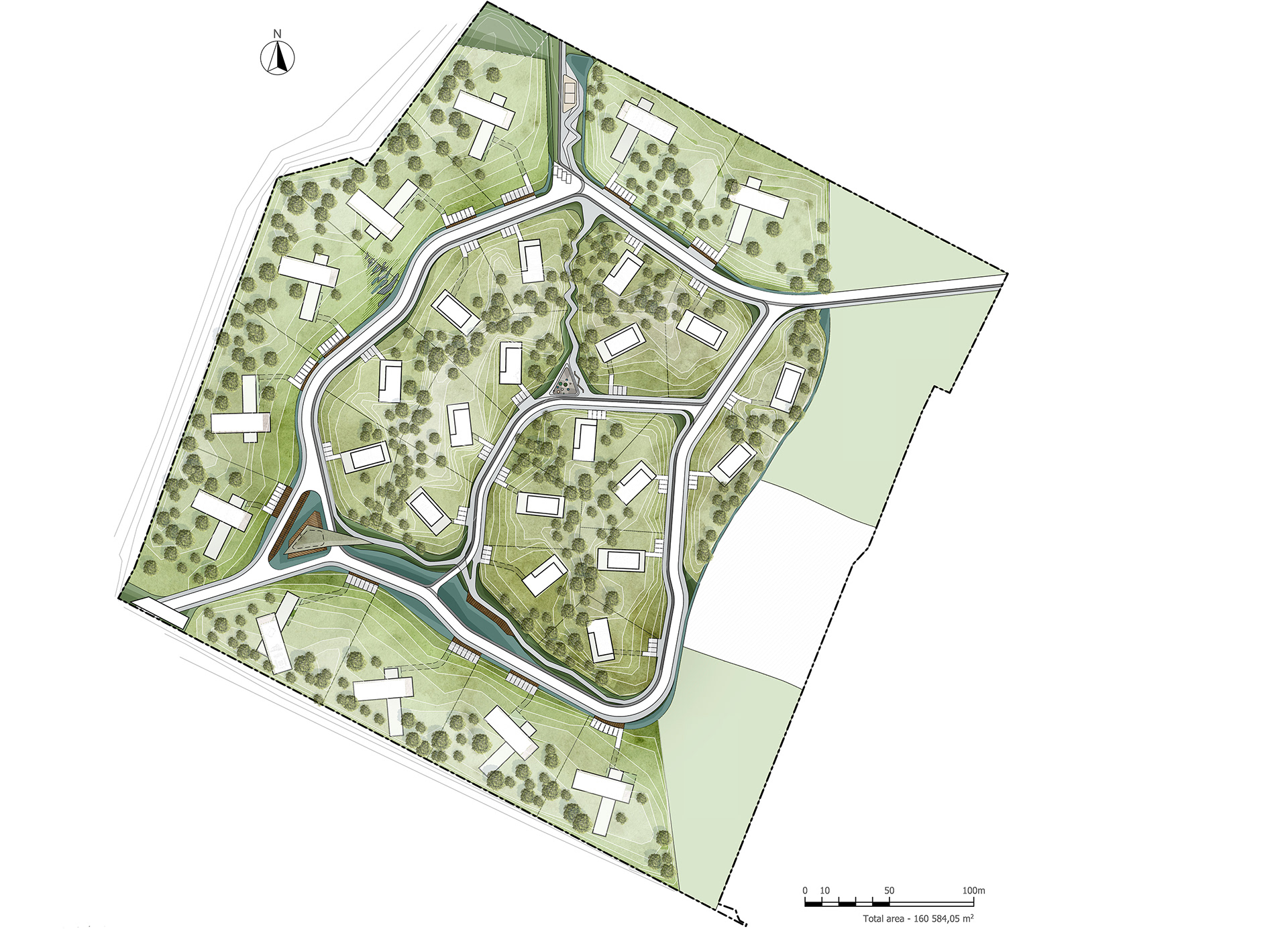
SREDAA was commissioned to lead the masterplan and concept design for a suburban residential area outside Moscow. The project combines contemporary urban-style housing with a landscape shaped by the site’s steep, hilly terrain and its proximity to a golf course. Working in collaboration with SLA, we developed the layout, defined the key design directions, and guided the project through its early stages.
Grass slopes, rocky outcrops, flowing water, and safe, intimate natural terrain became the foundation of the concept—bringing a sense of wild nature into a highly developed suburban setting.












